Search

Leave a Message

Thank you for your message. I will be in touch with you shortly.

Explore My Properties

Property Description

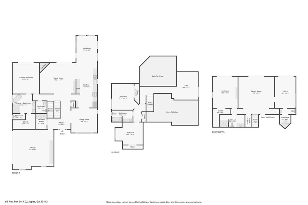
Extensively renovated 3,900 square foot craftsman style home with 4 bedrooms & 4 1/2 baths. The home is located on a large private lot in the desirable High Gap area of Big Canoe. The main floor of the home is open, filled with natural light and has newly refinished solid oak floors and fresh paint. Enjoy time in the family room with the stacked stone fireplace or in the sunroom with views of the hardwood forest and mountain laurel. The large kitchen has all new appliances, range hood, hard marble countertops, and subway tile backsplash. The dining room is just off the kitchen for hosting dinners with family & friends. The master bedroom suite is also on the main level with a beautiful tray ceiling, spacious totally renovated bath, walk-in closet and private access to the expansive deck. Upstairs offers a suite of 2 bedrooms and a full bath along with a large loft that is open to the living areas below. The terrace level includes a large family room for relaxing and enjoying a movie or ballgame. There also is another large bedroom that could be used as a craft room, exercise space, etc and a separate office with a private bathroom. In addition, the terrace level provides ample storage space. The deck and stone patio provides wonderful outdoor living and the opportunity to enjoy nature and wildlife. The home has extensive renovations including a roof, lightning protection system, hvac, tankless hot water heater, interior and exterior paint, kitchen appliances, upgraded lighting fixtures, landscaping, etc. This is a must see home to start enjoying the Big Canoe Life! Buyer to verify all information and dimensions deemed important.

Overview

Property Status
Sold
Lot Size
1.23 Acres
MLS ID
7624087
Property Type
Residential
Year Built
1999

Features & Amenities

Total Area
3,883 Sq.Ft.
Architecture Styles
Traditional
Water Frontage
None
View Description
Trees/Woods, Other
Stories
3
Garage Spaces
2.0
Water Source
Private
Utilites
Cable Available, Electricity Available, Natural Gas Available, Phone Available, Underground Utilities, Water Available
Pool
None
Roof
Composition
Lot Features
Back Yard, Front Yard, Landscaped, Level, Private, Wooded
Parking
Driveway, Garage, Garage Door Opener, Garage Faces Side, Kitchen Level, Level Driveway
Heat Type
Central, Propane
Air Conditioning
Ceiling Fan(s), Central Air, Humidity Control, Multi Units, Zoned
Laundry Room
Laundry Room, Main Level
Fireplace
Factory Built, Gas Starter, Glass Doors, Great Room
Appliances
Dishwasher, Disposal, Electric Oven, Electric Range, Microwave, Refrigerator, Self Cleaning Oven, Tankless Water Heater
Other Interior Features
Bookcases, Cathedral Ceiling(s), Central Vacuum, Crown Molding, Disappearing Attic Stairs, Double Vanity, Entrance Foyer 2 Story, High Ceilings 10 ft Main, High Speed Internet, Tray Ceiling(s), Vaulted Ceiling(s), Walk-In Closet(s)
Sewer
Septic Tank
Substructure
None
Disability Features
Accessible Bedroom
Security Features
Security Gate, Security Guard, Security Lights, Security Service, Smoke Detector(s)
Green Feature
None
Other Exterior Features
Lighting, Private Entrance, Private Yard, Rain Gutters, Rear Stairs
Elementary School
Robinson
Middle School
Dawson County
High School
Dawson County
Sales Price
$835,000
Real Estate Tax
$3,673/yr
HOA
$4,800/yr

Downloads

65 Red Fox Drive

Schedule a Tour

I would love to help you see this beautiful home! As a full-service real estate agent, I can help you tour. Please submit an offer, and answer questions about the buying process.

Thank you

for your interest in 65 Red Fox Drive, Big Canoe, GA 30143

65 Red Fox Drive
Navigate
65 Red Fox Drive
explore in 3d

I'm Interested In

65 Red Fox Drive

or
  • CallRockey Fields

    License #335631

    (678) 793-8825
  • Browse My

    Current Listings

    • 1697 Eastside Parc Street SE For Sale

      $824,900

      1697 Eastside Parc Street SE

      1697 Eastside Parc Street, Atlanta, GA 30316

      • 6 Beds
      • 5 Baths
      • 3,980 Sq.Ft.
    • 1702 Eastside Parc Street SE Active Under Contract

      $824,900

      1702 Eastside Parc Street SE

      1702 Eastside Parc Street, Atlanta, GA 30316

      • 7 Beds
      • 5 Baths
      • 3,980 Sq.Ft.
    • 1709 Eastside Parc Street SE For Sale

      $714,900

      1709 Eastside Parc Street SE

      1709 Eastside Parc Street, Atlanta, GA 30316

      • 4 Beds
      • 4 Baths
      • 2,801 Sq.Ft.
    • 1 Plantation Drive NE Unit B For Sale

      $320,000

      1 Plantation Drive NE Unit B

      1 Plantation Drive NE Unit B, Atlanta, GA 30324

      • 2 Beds
      • 2 Baths
      • 1,635 Sq.Ft.
    • 3641 Bert Drive For Sale

      $79,900

      3641 Bert Drive

      3641 Bert Drive, Gainesville, GA 30506

    View All

    Follow Us On Instagram